1
2
3
4
5
6
7
8
9
10
11
Situation

Village de Champlan, commune de Grimisuat, https://maps.app.goo.gl/DueVnnTEMHJusi4U7?g_st=iw

Situé au cœur du Valais sur sa rive droite , « Les Jardins du Bisse » offrent un havre de paix ensoleillé à seulement 5 minutes en voiture du centre-ville de Sion.

A deux pas, la Colline du Château et le sentier du bisse de Clavau, promettent de magnifiques promenades avec vue à couper le souffle sur la vallée et ses vignobles en terrasses, rythmé de ses cabanes de vignerons réhabilités en paisibles haltes gourmandes , proposant les meilleurs mets et crus du terroir.

Les extérieurs

Deux petits immeubles, composés de quatre et sept résidences.

La plupart bénéficient de leur propre jardin privatif, offrant un espace extérieur spacieux et luxuriant. Leur particularité réside d'une part dans les accès individualisés par un portail d'entrée privé devant chacun des jardin, et d'autre part par une terrasse ombragée sous une pergola végétalisée.

Les intérieurs

Les attiques bénéficient de magnifiques volumes avec de grandes hauteurs sous-plafond, et de sapcieuses loggias couvertes avec un beau dégagement.

Les finitions et les choix intérieurs sont personnalisables selon les préférences des acquéreurs , offrant une opportunité unique pour les futurs résidents d'emménager dans des espaces conçus selon leurs besoins et leurs goûts.

Energies

La combinaison entre l’installation de panneaux solaires photovoltaïque, une pompe à chaleur à géothermie, ainsi qu’une enveloppe thermique de classe énergétique supérieure, assure une économie massive des charges d’exploitation .

La technologie du Free-Cooling permettra en outre de refroidir «gratuitement» les espaces intérieurs durant la période estivale, tout en rechargant les sondes géothermiques en chaleur et ainsi améliorer le rendement du chauffage hivernal.

Stationnement

Pour assurer un confort optimal aux résidents, l'espace de stationnement couvert comprend 22 places de parc, dont cinq garages box.

Toutes les places privatives sont pré-équipées pour les bornes électriques, et 4 places de parc sont à disposition des visiteurs.

Commodités

Un espace puplique de loisir et de sport se situent juste à côté, tandis que le centre du village propose les commodités essentielles, comme un Denner, deux restaurants, un bus pour Sion et pour ses écoles, ...)

La livraison des appartements est prévue pour l'hiver 2026-2027.

lot
pieces
type
habitable
extérieure
jardin
prix
1
3.5
rez jardin pergola
90
10
188
réservé
Lot n°1
réservé
(excl. place de stationnement)
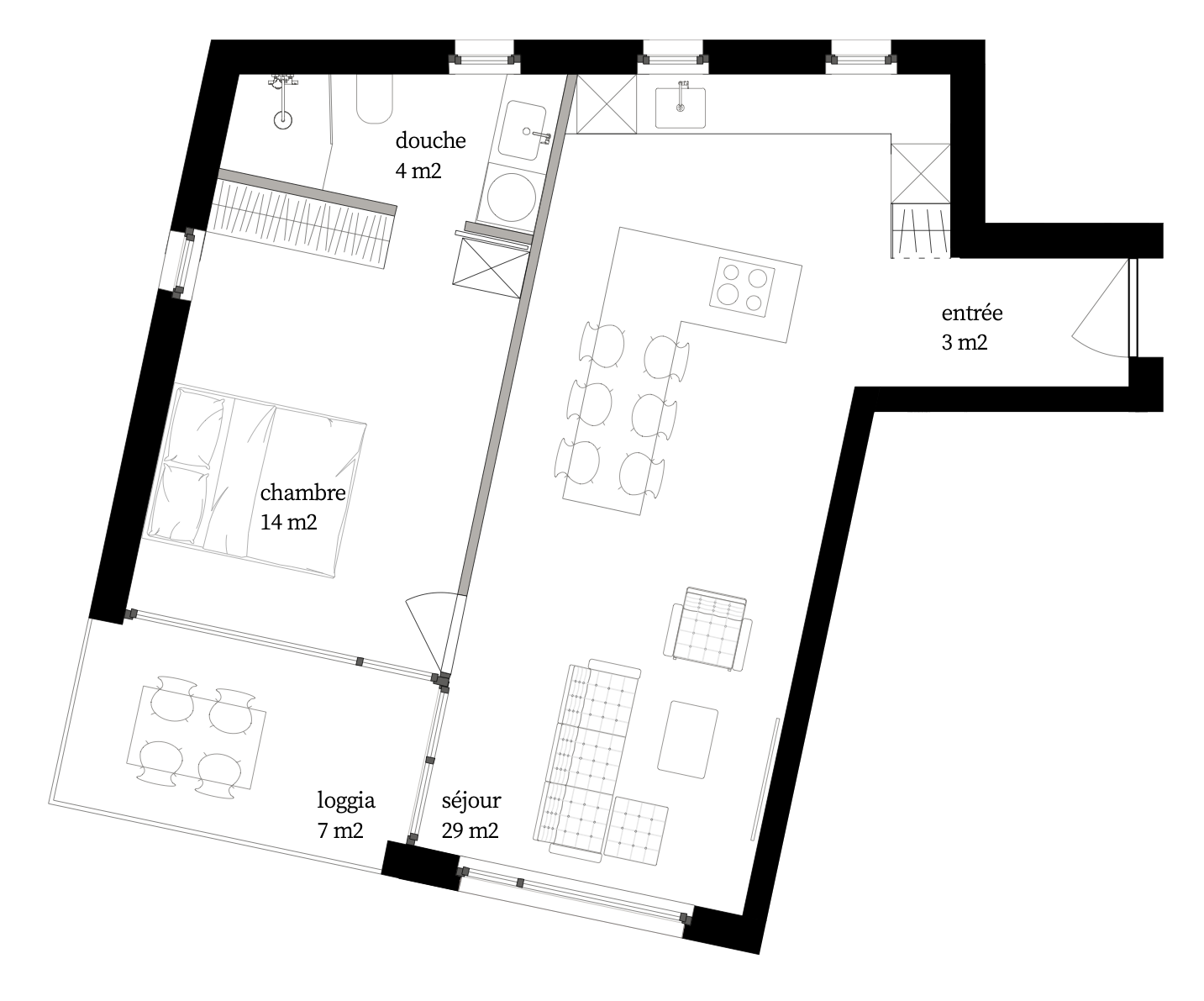
Rez Jardin Pergola
3.5 pièces
90m2
188m2
10m2
95m2
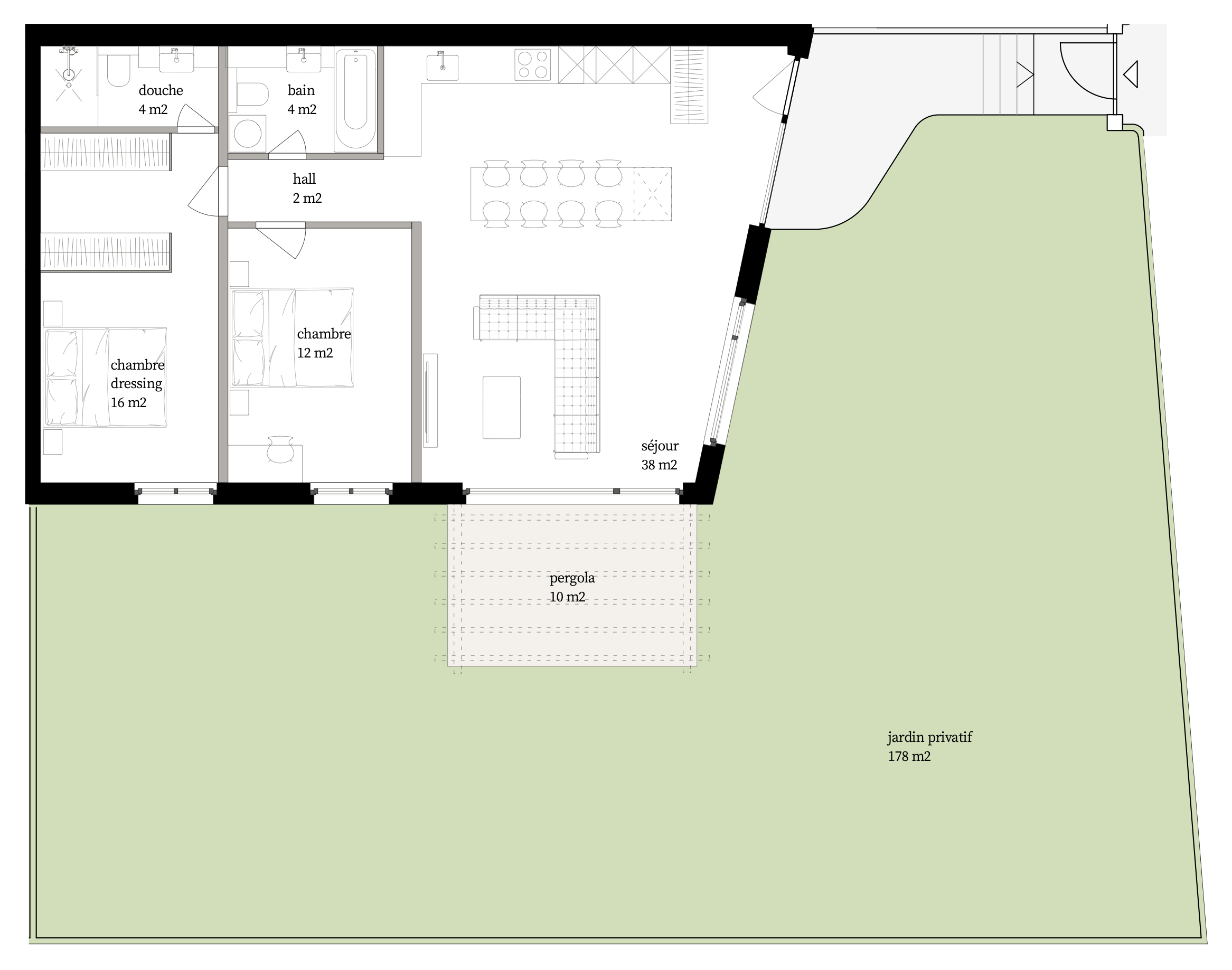
2
3.5
rez jardin pergola
90
10
178
vendu
Lot n°2
vendu
(excl. place de stationnement)
Rez Jardin Pergola
3.5 pièces
90m2
178m2
10m2
95m2
3
4.5
rez jardin pergola attique
112
10
103
réservé
Lot n°3
réservé
(excl. place de stationnement)
Rez Jardin Pergola Attique
4.5 pièces
112m2
103m2
10m2
117m2
4
4.5
rez jardin pergola attique
112
10
113
695'000 CHF
Lot n°4
695'000 CHF
(excl. place de stationnement)
Rez Jardin Pergola Attique
4.5 pièces
112m2
113m2
10m2
117m2
5
3.5
rez jardin pergola
90
10
120
545'000 CHF
Lot n°5
545'000 CHF
(excl. place de stationnement)
Rez Jardin Pergola
3.5 pièces
90m2
120m2
10m2
95m2
6
3.5
rez jardin pergola
94
10
157
vendu
Lot n°6
vendu
(excl. place de stationnement)
Rez Jardin Pergola
3.5 pièces
94m2
157m2
10m2
99m2
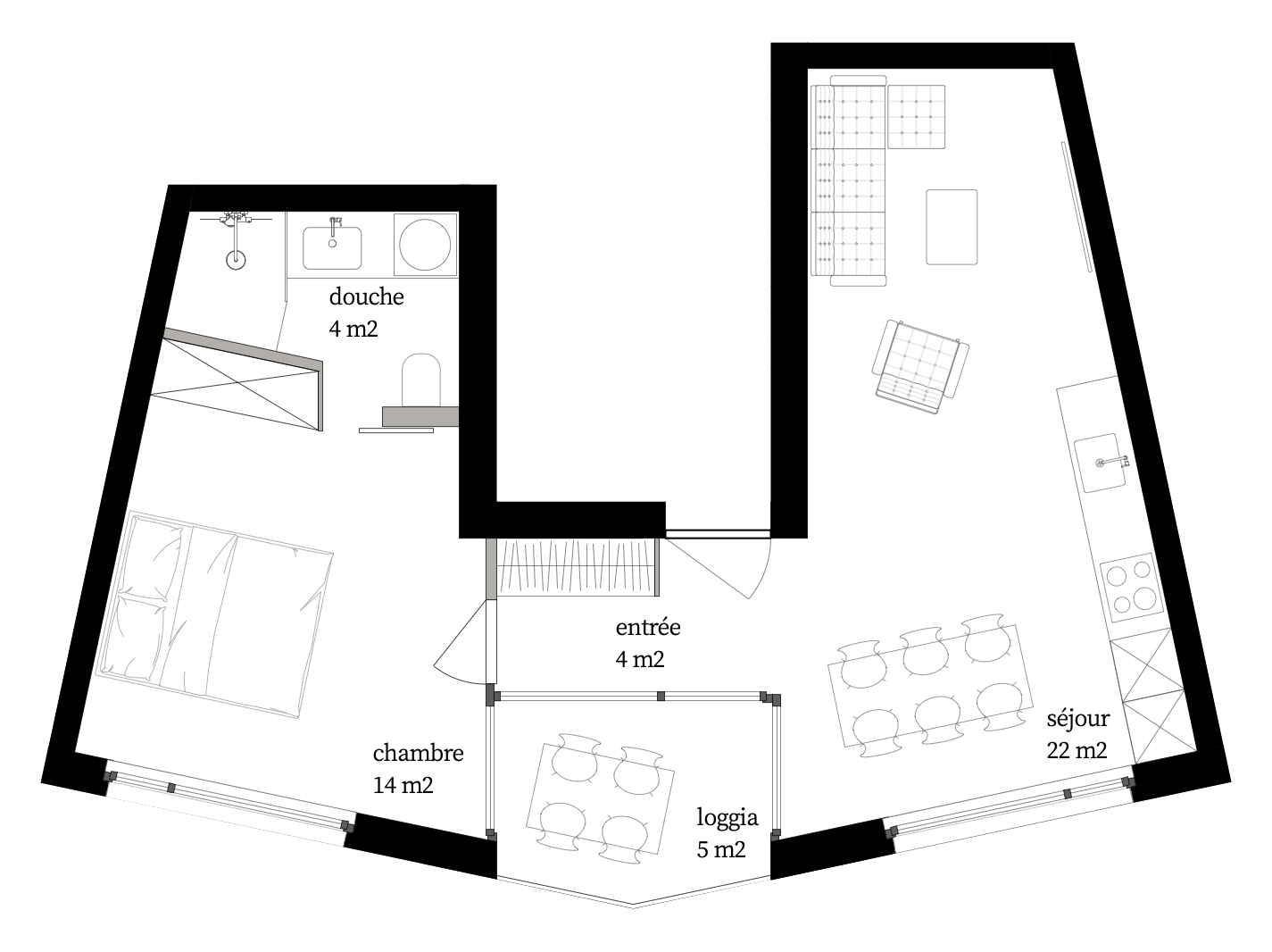
7
2.5
étage loggia
61
7
-
vendu
Lot n°7
vendu
(excl. place de stationnement)
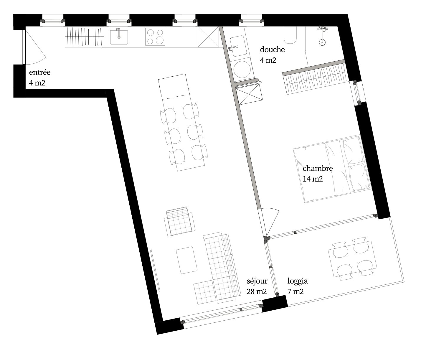
Etage Loggia
2.5 pièces
61m2
72
64.5m2
8
2.5
étage loggia
53
5
-
vendu
Lot n°8
vendu
(excl. place de stationnement)
Etage Loggia
2.5 pièces
53m2
5m2
55.5m2
9
2.5
étage loggia
60
7
-
vendu
Lot n°9
vendu
(excl. place de stationnement)
Etage Loggia
2.5 pièces
60m2
7m2
63.5m2
10
3.5
attique loggia
93
10
-
vendu
Lot n°10
vendu
(excl. place de stationnement)
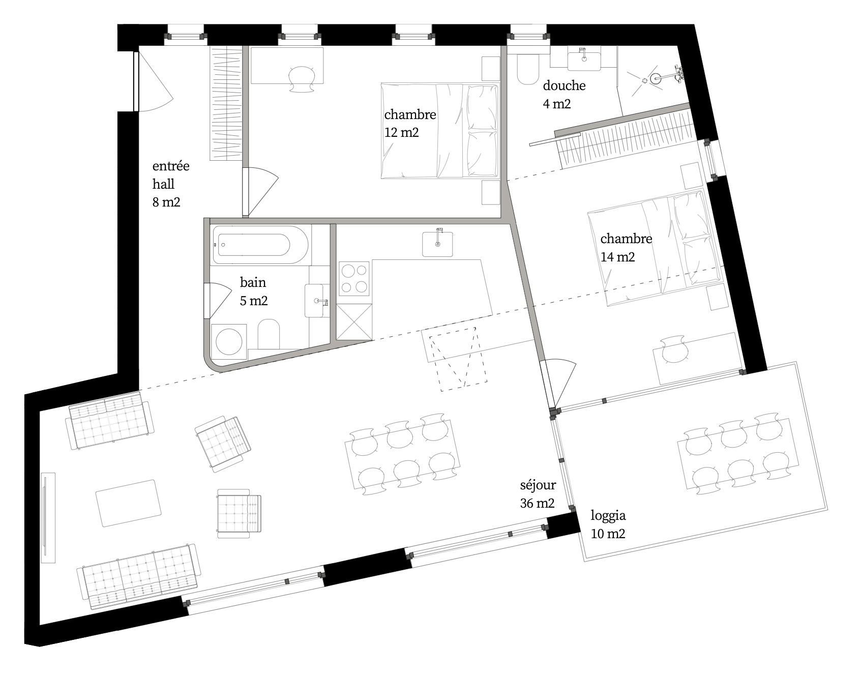
Attique Loggia
3.5 pièces
93m2
10m2
98m2
11
3.5
attique loggia
92
10
-
vendu
Lot n°11
vendu
(excl. place de stationnement)
Attique Loggia
3.5 pièces
92m2
10m2
97m2

Contactez-notre courtier à l'aide du formulaire en ligne, ou directement par téléphone selon les coordonnées ci-dessous:

KL Immo Sàrl
Route de la Drague 18
1950 Sion
027 322 61 61
078 871 74 10

Nom et prénom sont obligatoire

Adresse email est obligatoire

Numéro de téléphone est obligatoire

Message obligatoire